Длина балок составляет на рис. 1.2 полуторакратную, а на рис. 1.1 двукратную длину прогонов. Экономичная длина прогонов от 6 до 12 м, балок от 7 до 20 м.
Расположение балок может не соответствовать расположению колонн. На рис. 1.1 каждая третья балка лежит на оси колонны. На рис. 1.2 оси балок не совпадают с осями колонн. Благодаря этому рядом с колоннами остается пространство для вертикальных шахт оборудования.
Колонны могут размещаться любым способом. Это дает большую свободу в расстановке колонн. Треугольная сетка колонн показана на рис. 1.3. Балки обоих направлений могут быть изготовлены в виде балок со сплошной стенкой, перфорированных балок или ферм. Они могут лежать друг на друге или быть врезанными Друг в друга. Вид и расположение балок обоих видов зависят от высоты перекрытия и размещаемых инженерных коммуникаций.
2 и 3. Балки перекрытия и прогоны, лежащие в одном уровне, имеют малую конструктивную высоту. Технические магистрали могут быть проведены сквозь стенки балок, особенно перфорированных.
4 и 5. Решетчатые фермы особенно удобны для прокладки оборудования, однако величина треугольных полей ограничивает поперечное сечение проводок.
6 и 7. Балки, лежащие друг на друге в разных уровнях, требуют большой строительной высоты для образования балочной клетки, но благодаря этому создается пространство для размещения технического оборудования и инженерных коммуникаций с большим поперечным сечением. В этом случае технические магистрали, как и балки, разводятся в двух уровнях. Для стальных конструкций эта система дает экономичное решение и ускорение монтажа.
Система с лежащими в разных уровнях балками особенно пригодна для сооружений с высокой степенью технического оснащения.
8. В здании, разделенном коридором, в коридоре проложены главные магистрали в уровне прогонов под балками перекрытия. Потолок в коридоре подвешен под прогонами. Магистрали проходят рядом с балками перекрытия и могут пересекать поперек все здание. Отводки проходят в щель в стене коридора, которая остается между прогонами и плитами перекрытия. Потолки в помещениях подвешены непосредственно под балками перекрытия, т. е. выше, чем в коридоре.
9. В здании, имеющем центральные шахты кондиционирования, горизонтальные основные магистрали можно проложить, например, в верхней плоскости балок перекрытия, главные разводящие магистрали — в нижней плоскости прогонов и конечные разводящие магистрали — также в верхней плоскости балок перекрытия.
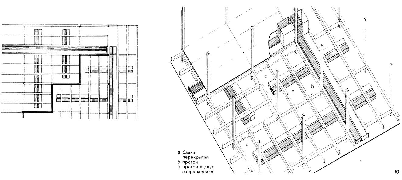
10. При расположении вертикальных шахт оборудования в углу здания рационально изменять направление балок около шахт для удобства прокладки магистралей в перпендикулярном направлении.
11. Здание имеет только наружные колонны, расположенные с большим шагом. Между ними уложены прогоны вдоль здания. Валки перекрытия проходят через всю ширину здания. Внутри здание свободно от колонн, возможна произвольная расстановка перегородок.
12. Здание имеет несколько рядов наружных и внутренних колонн, расположенных с большим шагом. Между наружными колоннами проходят прогоны со сплошной стенкой, между внутренними — решетчатые балки. Балки перекрытия равны по высоте фермам и лежат между прогонами. — Среднее техническое учебное заведение в Бругг-Виндише (Швейцария). Архитекторы: Б. и Ф. Халлер.
13. Широкие здания могут иметь четыре ряда колонн. Оба внутренних ряда колонн стоят с обеих сторон коридора или один ряд внутренних колонн с одной стороны коридора, но в этом случае появляются неравные пролеты балок перекрытия.










