| Название изображения: | План этажа и разрез здания |
| Ширина и высота: | 735 x 750 точек |
| Размер файла: | 99 201 байт |
| Дата добавления: | 20 Ноября 2015 |
| Прямая ссылка на картинку: | plan-etazha-i-razrez-zdaniya.jpg |
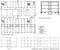
| Статья расположения: | Административное здание в Пуатье (Франция) (Здания: Примеры зданий) |
![]() План этажа и разрез здания | Если вы хотите вставить эту картинку на сайт или форум разместите этот код: HTMLBB Code
← получится так |














